
地 址:上海市金山區興塔工業區
咨詢電話:021-57362601
圖文傳真:021-33250343
電子郵箱:hanyuev@126.com
網 址:http://mls998.com
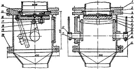
近期,我公司開發了一款新型快開式排泥閥,該閥特別適合裝設于樓面或地面,需要間隙排出漿料或濾泥的設備(如各種間隙式加壓過濾機、間隙式沉降槽等)上,既可降低設備的安裝高度,又可充分顯示閥門啟閉快速、輕便、不污染環境等優點。本快開式排泥閥為拐軸結構原理,見圖1。除部分零件采用鋼件外,大部分零件用鑄件或低碳鋼板焊接均可。閥外觀呈方框形狀。閥門的開閉是通過操縱手柄,使相連的軸轉動,因而焊接在軸上的拉臂牽動拉桿水平移動(見圖2),帶動拐軸臂9轉過某一角度。這時,與拐軸臂用平鍵12固定在一起的拐軸8也同時轉過某一角度。當拐軸由水平位置轉到接近垂直水平的位置時,閥門被拐軸頂緊關閉,密壓機即可進行工作。在操作過程中,雖然拐軸頂緊閥門時拐軸上承受的垂直于水平的反作用力很大,但此反作用力距離拐軸的力臂卻相當短,加上需要克服的拐軸與閥門之間的摩擦力也不太大,而操縱的手柄卻很長,所以操作者進行操作時并不感到費力。這就是此排泥閥最突出的特點。為了使閥門開啟截面大,閥體3上部鉆有一橫通孔,孔中橫穿閥門軸16,閥門7就固定在閥門軸16上,成鉸鏈形式。為保證閥門在工作時開閉靈活可靠,閥門7上的鉸鏈孔制成葫蘆鏈扣形狀,使閥門可以上下位移一定距離,以彌補由于制造誤差而關不緊閥門。此外,為使拐軸頂緊閥門始終如圖示位置,密封膠皮6與閥門7之間可加墊片調節。閥門7在開啟過程中,為防止拐軸轉動過位,閥門7上裝有限位塊17。為裝卸拐軸方便和便于清理檢查,閥體3上還裝有可拆卸的端蓋13及清理蓋板19等另件。由于此閥結構簡單,制造容易,裝拆維修都比較方便,因而造價低廉,得到了采用。
此拐軸快升式排泥閥,設計承受工作壓力為3公斤/厘米2,若使用單位需要承受壓力更大的排泥閥,可重新設計拐軸,增大其直徑,以使安全可靠。
圖1 快開式排泥閥結構圖
1.排泥管法蘭 2.密封墊 3.閥體 4.緊固螺釘 5.壓板 6.密封膠皮 7.閥門 8.拐軸 9.拐軸臂 10.止動螺釘 11.下簡體法蘭 12.平鏈 13.端蓋 14.閥座 15.墊圈 16.閥門軸 17.限位塊18.緊同螺釘 19.清理盞板 20.聯接螺栓

圖2 快開式排泥閥操縱機構示意圖
1.拉桿 2.棘板 3.手柄 4.拉臂 5.軸
網站首頁